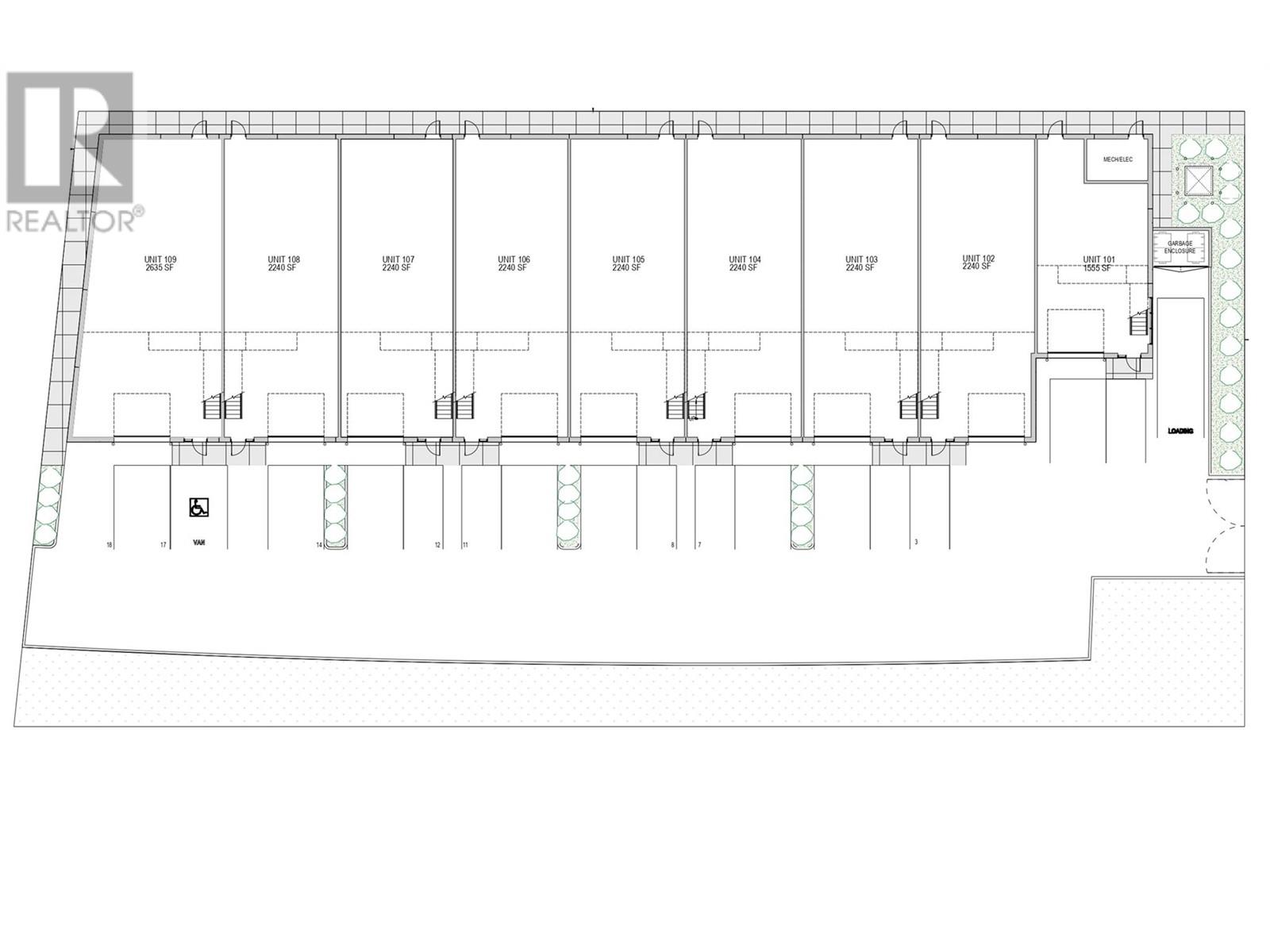
Pre-Sale Opportunity! This 2140 sq ft strata unit, built by Bartek Construction (the same builder behind the Area27 Clubhouse and Velocity AP) features a 1650 sq ft industrial warehouse and a 497 sq ft customizable mezzanine. Located in Oliver, BC it is ideal for Area 27 members needing secure storage for gear or vehicles, or for businesses looking for a secure space to operate. The unit is perfect for storage, light manufacturing, or commercial use. With easy access to major roads and ample parking, this property offers great value and flexibility for both storage and business needs. (id:2469)
Level lot, Private setting
Airport, Park, Recreation, Shopping
Macdonald Realty (Surrey/152)
All information displayed is believed to be accurate, but is not guaranteed and should be independently verified. No warranties or representations of any kind are made with respect to the accuracy of such information. Not intended to solicit properties currently listed for sale.
The trademarks REALTOR®, REALTORS® and the REALTOR® logo are controlled by The Canadian Real Estate Association (CREA) and identify real estate professionals who are members of CREA. The trademarks MLS®, Multiple Listing Service® and the associated logos are owned by CREA and identify the quality of services provided by real estate professionals who are members of CREA.
REALTOR® contact information provided to facilitate inquiries from consumers interested in Real Estate services. Please do not contact the website owner with unsolicited commercial offers.