KELOWNA

Kelowna is located in the Okanagan Valley in British Columbia, Canada. Known for its beautiful lakes, beaches, wineries, and outdoor recreational opportunities, Kelowna has become a popular destination for tourists and residents.

The real estate market in Kelowna has been steadily growing, with a mix of single-family homes, townhouses, and condos available. Prices have risen recently, but the market remains relatively affordable compared to other major Canadian cities. The city also has a good mix of older and new homes, with many properties featuring stunning mountains and Okanagan Lake views. The city also has a vibrant downtown area with shops, restaurants, and several wineries offering tastings and tours. Outdoor enthusiasts can also enjoy hiking, biking in nearby mountains, and skiing at the Big White Ski Resort.

Kelowna also boasts a rich cultural scene with several museums and art galleries and hosts events and festivals throughout the year.

Description

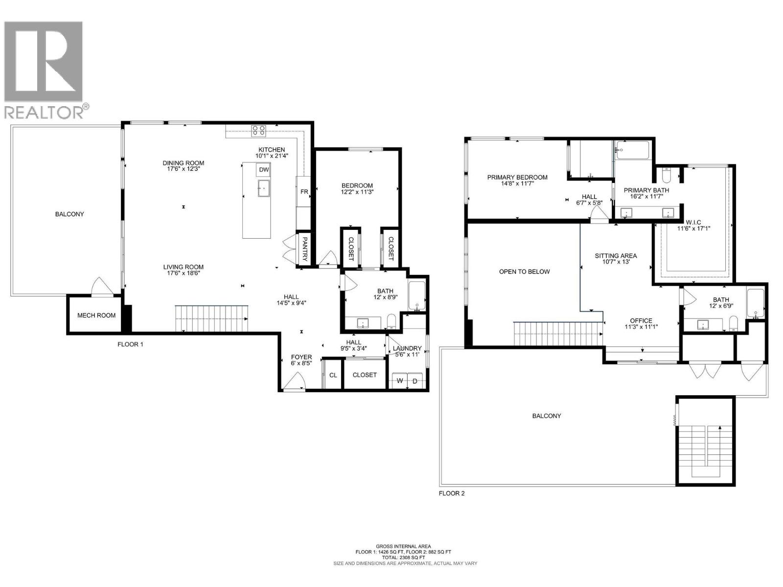
Experience luxury lakeside living in this brand-new modern penthouse in Granite III at McKinley Beach. Panoramic Okanagan Lake views set the tone the moment you walk in, framed by soaring vaulted ceilings and floor-to-ceiling windows that fill the open-concept space with natural light. The gourmet kitchen features an entertainment-sized island with wine fridge, high-gloss cabinetry, and professional-grade appliances. The great room flows onto a spacious lake-view terrace, perfect for outdoor dining, complete with built-in heaters for year-round comfort. This level also includes a generous bedroom with its own ensuite, all with heated tile floors. A dramatic two-storey tiled feature wall borders the floating glass staircase leading to the loft-style upper lounge, ideal as a reading nook, media room, or office. Voice-activated automatic blinds enhance comfort throughout. The primary suite is a private retreat, offering unobstructed lake views, a designer walk-in closet, and a stunning 5-piece marble ensuite with steam shower and heated tiles. The expansive rooftop terrace features an automated louvred roof with built-in fans, grilling area, hot-tub rough-in, and terrace heaters, creating an unmatched outdoor oasis. Steps from the sandy beach, marina, trails, parks, tennis courts, and outdoor gym, Granite residents also enjoy a sauna and outdoor pool. Three parking stalls sit conveniently next to the elevator. This penthouse delivers Okanagan luxury at its finest. (id:2469)

Features

Central island, Two Balconies

Amenities

Golf Nearby, Park

Listing Provided By

Oakwyn Realty Okanagan-Letnick Estates

Neighborhood Info

All information displayed is believed to be accurate, but is not guaranteed and should be independently verified. No warranties or representations of any kind are made with respect to the accuracy of such information. Not intended to solicit properties currently listed for sale.

The trademarks REALTOR®, REALTORS® and the REALTOR® logo are controlled by The Canadian Real Estate Association (CREA) and identify real estate professionals who are members of CREA. The trademarks MLS®, Multiple Listing Service® and the associated logos are owned by CREA and identify the quality of services provided by real estate professionals who are members of CREA.

REALTOR® contact information provided to facilitate inquiries from consumers interested in Real Estate services. Please do not contact the website owner with unsolicited commercial offers.

Send us your questions about this property and we'll get back to you right away.

Send this to a friend, or email this to yourself

Property Details

Living Area
2,308 sqft.
Bedrooms
2
Bathrooms
3
Lot Size Area
under 1 acre
Taxes
N/A
Type
Apartment
Style
N/A
Basement
Year Built
2023
Real Estate Listing
Provided by:
  • 302 Eckhardt Ave W
  • Penticton, BC
  • V2A 2A9